Interior design where nature and technology meet

Greenflux Office


Design of a future-proof working environment in an existing office building that fully supports the growth, ambitions, and core values of a leading tech company in e-mobility

Within an existing office building, a future-proof working environment has been designed and completed that fully supports the growth, ambitions, and core values of this leading tech company in e-mobility.

Greenflux is a pioneer in smart charging solutions and works daily on building a sustainable future through innovation and real-world impact. Due to the company’s rapid growth, there was a clear need for a new office interior that is not only functional and scalable, but also clearly reflects the DNA of Greenflux.

The project was realized through a close and intensive collaboration between Greenflux and Design & Build team ‘Workspace Wonders’. Greenflux approached Planeka for its integrated project approach. Planeka commissioned Bureau Fraai to design the project, and Planeka handled the entire project coordination and execution.

From the first design concepts through to final delivery, all parties worked closely together, with short communication lines, mutual trust, and a shared ambition to create an inspiring workplace.

The design reflects Greenflux’s core values; innovation, sustainability, and progress, while simultaneously providing a warm and welcoming work environment where employees feel comfortable, connected, and part of a community. The office is conceived as a place where collaboration, interaction, and focused work naturally come together.

The result is a future-ready office interior where functionality, aesthetics, and sustainability are seamlessly integrated. It is a workspace that supports the continued growth of Greenflux while strengthening both the company’s identity and employee wellbeing.

 

“The flowing forms create a welcoming ambiance and improve acoustics, reinforcing the idea of a people-centered, contemporary workplace. “

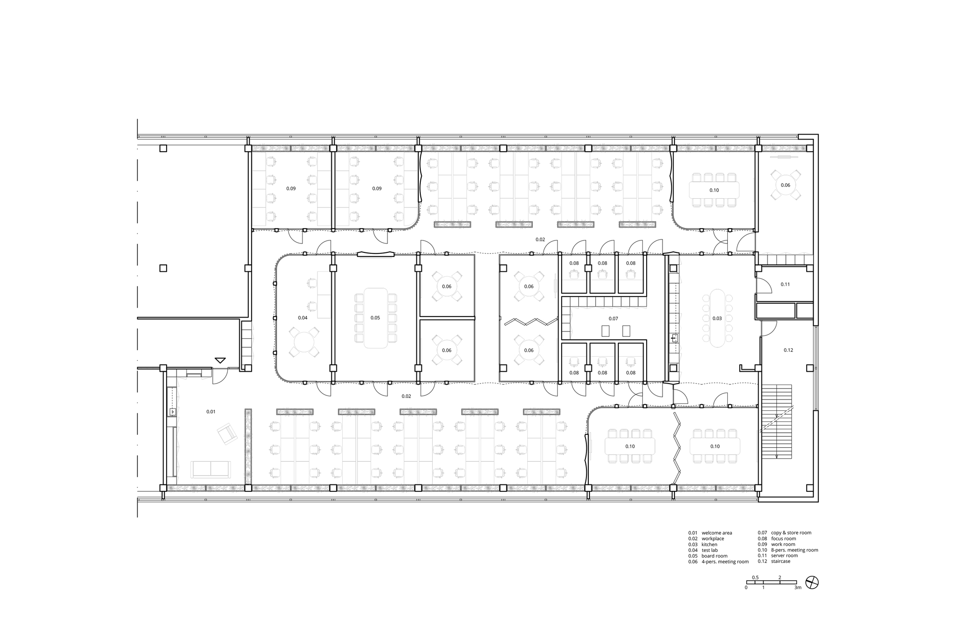
A key design principle was maximizing daylight and visual connection to the outside. The entrance is therefore deliberately oriented toward a bright façade-facing area, creating an open and inviting first impression upon arrival. The open workstations are also positioned along the façade, ensuring ample natural light and views to the surrounding.

The workspaces are flanked on both sides by integrated planters, allowing employees to work surrounded by greenery. This introduces a soft, natural atmosphere and supports wellbeing, while subtly defining the work areas without compromising the openness of the space.

Meeting rooms and collaboration spaces are mainly located at the center of the office and together form the natural heart of the organization. These spaces encourage interaction, knowledge sharing, and connection. They are designed as a cohesive central volume, materialized in wood to emphasize the natural and sustainable character of the interior.

“These spaces encourage interaction, knowledge sharing, and connection. They are designed as a cohesive central volume, materialised in wood to emphasise the natural and sustainable character of the interior. “

 

credits

status:

completed, 2025

client:

Greenflux

design & build-team:

Planeka & Bureau Fraai

interior builder:

GK Interieurbouw

lighting design i.c.w.:

Lichtstudio Helder

planting:

Hoogendoorn Projectbeplanting

location:

Amsterdam, The Netherlands

project typology:

office, e-tech

m- installations:

Stonecold Klimaattechniek

e- installations:

Van den Dool

office furniture:

Vervoort

photography:

Flare Department